BESTLAGE ALTE DONAU – Penthouse über das gesamte Dachgeschoss – 1 Minute zur Alten Donau

Objektart
Wohnung
Objekttyp
Dachgeschoss
Vermarktungsart
Kauf
PLZ
1220
Ort
Wien, Donaustadt
ImmoNr.
3167
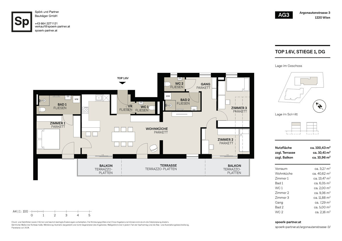
Wohnfläche
100 m²
Nutzfläche
109 m²
Anzahl Zimmer
4
Anzahl Badezimmer
2
Angebotspreis
958.000,00 €
Baujahr
2022
Energieausweis gültig bis
17.12.2030

Beschreibung

Ein Zuhause, das seinesgleichen sucht: Diese Penthouse vereint zwei Einheiten zu einer großzügigen Dachgeschosswohnung – mit viel Licht, Weite und Flexibilität. Nur eine Minute zur Alten Donau, in absoluter Bestlage.

Die Architektur schafft Großzügigkeit und Struktur zugleich. Der offene Wohn-Ess-Bereich mit direktem Terrassenzugang wird zum Herzstück des Zuhauses. Mehrere Schlafzimmer bieten Privatsphäre und Rückzug, Bäder und Stauraum sind klug verteilt. Zwei Terrassen erweitern das Wohnen ins Freie – mit Sonne von früh bis spät und Ausblick über die Dächer.

Gebaut im Niedrigenergie-Standard, mit modernster Technik: Wärmepumpe, Fußbodenheizung, Kühlung im Sommer. Nachhaltig, effizient, komfortabel – umgesetzt mit den besten Herstellern. Selbst kleine Details wie der Liftruftaster zeigen unsere Haltung: Wir denken an alles.

Als Familienunternehmen begleiten wir Sie persönlich und mit Hingabe. Auf Wunsch können Sie hier sogar Probeschlafen – danach werden Sie verstehen: Man möchte nicht mehr ausziehen.

Ein Zuhause für Menschen, die Großzügigkeit, Licht und Natur an der Alten Donau bewusst wählen.

Lage

Wohnen, wo Wien Urlaub macht.
Die Alte Donau ist einer der seltenen Orte, an denen Stadt und Natur im Gleichgewicht sind. Wer hier lebt, spürt sofort: besser geht es nicht.

Die Argonautenstraße 3 liegt im Filetstück der Alten Donau – nur eine Gehminute vom Wasser entfernt. Zwischen Segelbooten, Laufstrecken und ruhigen Uferwegen entsteht ein Lebensraum, der urbane Nähe mit Feriengefühl verbindet.

• U1 Kagran und Alte Donau fußläufig erreichbar
• Straßenbahn 25 sowie Buslinien 93A und 94A in unmittelbarer Nähe
• Donauzentrum – Wiens größtes Shoppingcenter – ums Eck
• Ärzte, Apotheken, Schulen und Kindergärten in direkter Umgebung
• Freizeit, Sport und Kulinarik direkt an der Alten Donau

Map

Ausstattung Beschreibung

Beste Bauweise. Österreichische Qualität. Internationale Planung.

Architektur von Mayr & Glatz, international renommiertes Designbüro

Materialien: INKU-Parkett, Türen, RECORD-Fenster, GROHE Armaturen

Technik & Komfort: SIEMENS, BÖSCH-Wärmepumpe

Energieeffizient: Fußbodenheizung mit Kühlfunktion, nachhaltiger Niedrigenergiestandard, Photovoltaik am Dach.

100 % Wertschöpfung in Österreich

Lift, Kellerabteil, großzügige Fahrrad- & E-Scooter-Räume

Liftruftaster in jeder Wohnung, barrierefrei in jede Wohnung.

Tiefgarage mit E-Ladestationen & Comfort-Parking-System

Sicherheitstüren & moderne Schließsysteme

Glasfaserinternet & SAT-TV

(Umbaukosten der Zusammenlegung von Wohnung 2.2 und 2.3 sind nicht im Preis enthalten)

Sonstige Angaben

Spörk und Partner Bauträger GmbH – Elementares Wohnen seit 15 Jahren.

Als Familienunternehmen bauen wir nicht Masse, sondern das Zuhause, das Sie suchen – individuell, persönlich und mit Haltung. Mit Hingabe, Qualität und einer verlässlichen Begleitung von der ersten Idee bis zur Schlüsselübergabe.

Baurecht – Eigentum mit Zukunft.
Die Argonautenstrasse 3 entsteht auf Baurechtsgrund: rechtlich dem klassischen Eigentum gleichgestellt, über Generationen gesichert und ohne Einschränkung. Der Vorteil: Wohnen im Filetstück der Alten Donau wird leistbar – eine Gelegenheit, die es in dieser Form kaum wieder geben wird.

Wir sind persönlich für Sie da und besichtigen gerne auch am Wochenende.

Kontakt
Arch. DI Christian Spörk · +43 (664) 227 1121
verkauf@spoerk-partner.at
www.spoerk-partner.at
www.spoerk-partner.at/elidagasse-26/

Contact person

Herr Christian SPÖRK

Webgasse 24/1/1a
1060 Wien

+ 43(664)2271121

+ 43(664)2271121

verkauf@spoerk-partner.at

Videos

Imagevideo

Sie sehen gerade einen Platzhalterinhalt von YouTube. Um auf den eigentlichen Inhalt zuzugreifen, klicken Sie auf die Schaltfläche unten. Bitte beachten Sie, dass dabei Daten an Drittanbieter weitergegeben werden.

Mehr Informationen

Seiten: 1

Seiten: 1